Flight Configuration Registration is Now Closed for 2025–2026
Thank you to everyone who registered for Flight Configuration during the 2025–2026 school year! We appreciate your commitment and are excited to have you on board.
Registration for this school year is now officially closed for FC. If you missed this opportunity, don’t worry—registration for the 2026–2027 school year will open in early August 2026. We look forward to welcoming new participants and continuing to provide an outstanding experience.
-------------------------------------------------------------------------------------------------------------------------------------------------------
Get Ready for an Exciting 2025-2026 School Year in the Flight Configuration Program!
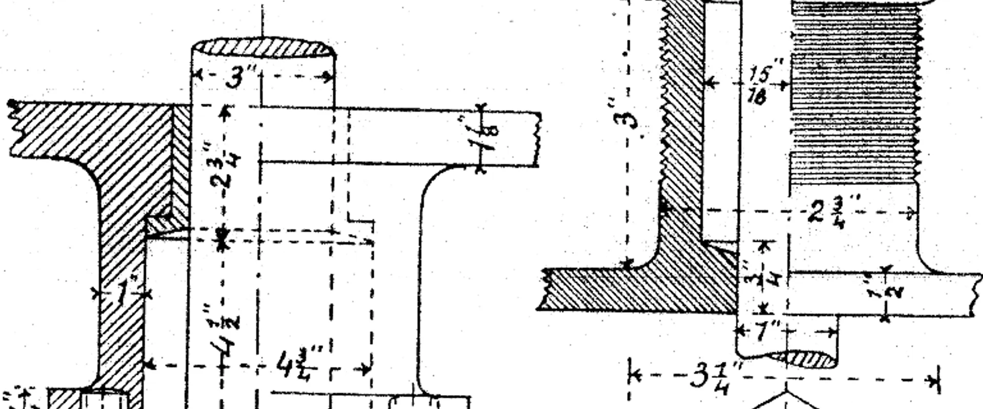
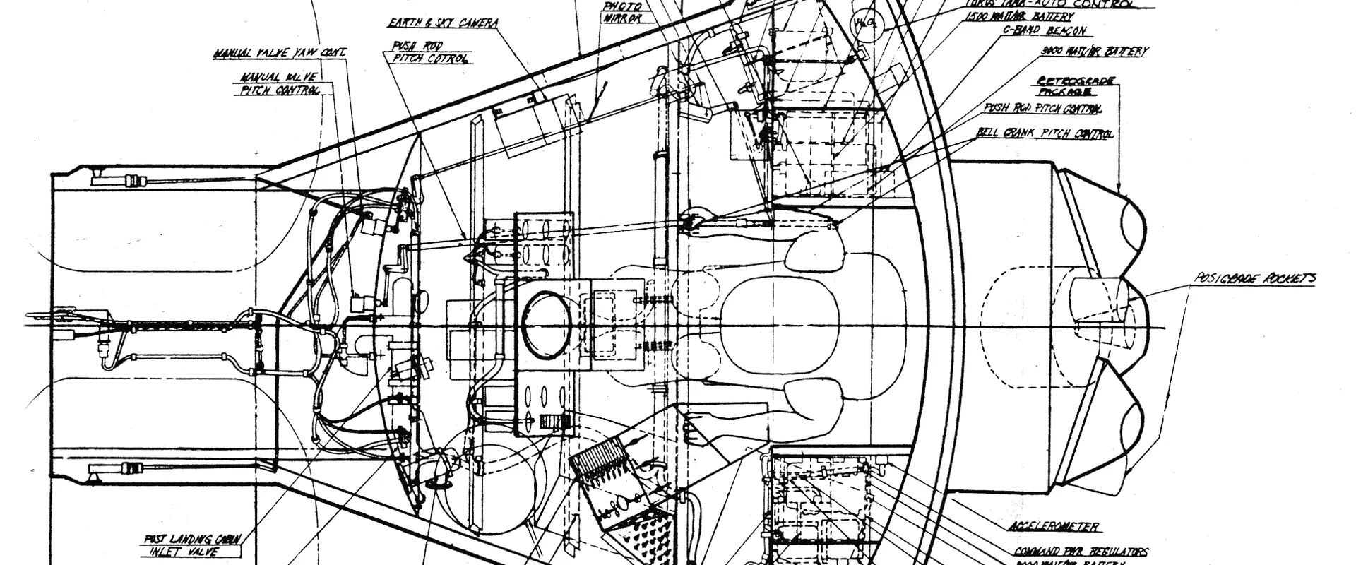
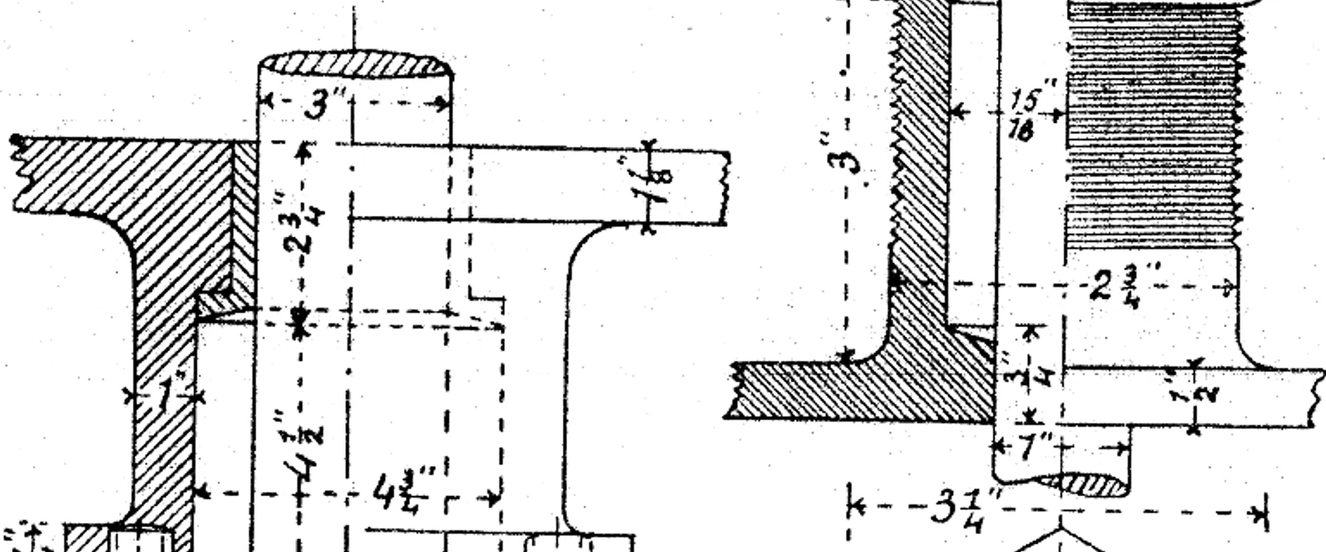
As the school year kicks off, students in the Flight Configuration program will embark on an extraordinary journey alongside NASA HUNCH Mentors, Mike Bennett and Luke Sammons! Together, the students will elevate their selected project designs and drawings to meet NASA’s rigorous drafting and manufacturing standards.
This process includes creating prototypes and engineering design units (EDU), detailed flight drawings using industry standard software as well as referencing NASA drawings standards, comprehensive documentation, and, when needed, stunning final 3D prints of piece parts or assemblies.
Whether your students are continuing an exciting project from a previous year that was selected to move to a new year or diving into a brand-new venture chosen for its potential to soar, they will gain invaluable hands-on experience that could lead to groundbreaking innovations in space exploration.
But that’s not all! Occasionally, organizations within NASA or the aerospace community will present HUNCH with unique projects that require quick turnarounds. This is where our Flight Configuration students shine! Their exceptional skills and creativity make them the ideal candidates to tackle these high-stakes challenges head-on.
Our list and in-depth information on each project is located on the Flight Configuration Canvas resource.
One resource that is provided to all Flight Configuration teachers and students is an LMS resource in Canvas. With this resource you are provided with many of the the elements that go into raising a design or drawing up to the level of an aerospace drawing ready for manufacture. Items such as types of material, metal finishing techniques, fasteners that are accepted for flight, tracking information for materials, and much more.
Once their designs are ready for production in one of our HUNCH schools, students can take pride in knowing that their projects will undergo the same rigorous safety and design standards as any product destined for Flight.
This is more than just a program; it’s an incredible opportunity to make a real impact in the world of space exploration. Let’s ignite curiosity, spark innovation, and watch as your students’ dreams take flight!